
251 E Pomfret St, Carlisle, PA 17013
Wolfe & Company REALTORS








Est. $1,972/mo · Get pre-qualified
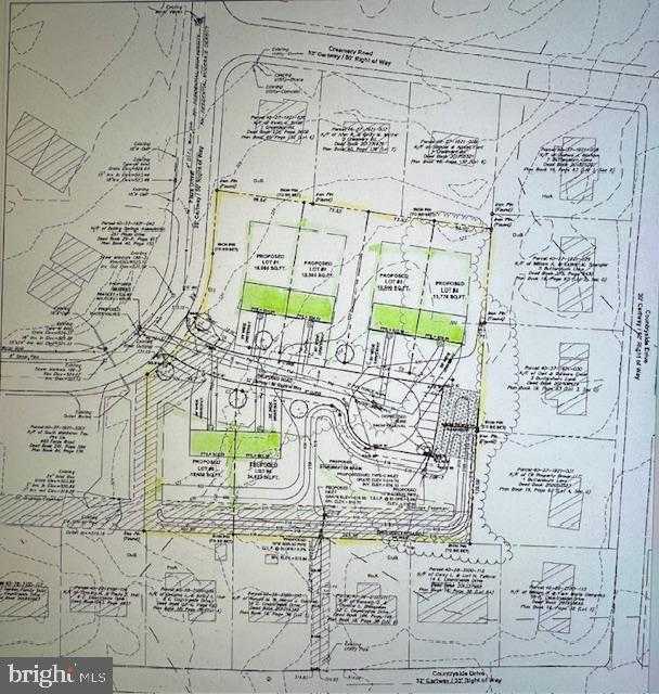
ATTENTION DEVELOPERS & BUILDERS!! LOCATION-LOCATION-LOCATION!! 2.78 ACRE LOT WITH AN APPROVED PLAN FOR 3 DUPLEXES (6 TOTAL UNITS) ON 6 LOTS WITH PUBLIC WATER & PUBLIC SEWER, NATURAL GAS AND ELECTRIC. ALL 6 LOTS ARE WIDE AND DEEP ALLOWING FOR ATTACHED TWO CAR GARAGES. PROPERTY IS LOCATED IN HIGHLY DESIRABLE BOILING SPRINGS LOCATION & SOUTH MIDDLETON SCHOOL DISTRICT WITHIN WALKING DISTANCE TO BOILING SPRINGS CHILDREN'S LAKE, YELLOW BREECHES, COMMUNITY POOL, SCHOOLS, CAFE, KARNS GROCERY STORE, PIZZERIA/ITALIAN RESTAURANT, GAS STATION, POST OFFICE, PARKS, APPALACHIAN TRAIL & ALLENBERRY PLAYHOUSE. ...
Listed on November 15, 2025 · Source: MLS #PACB2048598
Est. monthly payment
Down payment
Based on 20% down ($59,980), 6.85% interest rate, 30-year fixed. Insurance is an estimate. Actual costs may vary.
| Date | Event | Price |
|---|---|---|
| Apr 16, 2026 | Pending | $299,900 |
| Nov 15, 2025 | Listed for sale | $299,900 |
Cumberland Dr, Carlisle, PA 17013
W.G. RICE
Elementary School
YELLOW BREECHES
Middle School
BOILING SPRINGS
High School