
2040 Tysons Ridgeline Rd, Falls Church, VA 22043
Redfin Corp



















































































Est.$11,507/moCustomize payment
$292/sqft
Price per square foot
Newer construction
Built in 2025
2 parking spaces
Garage
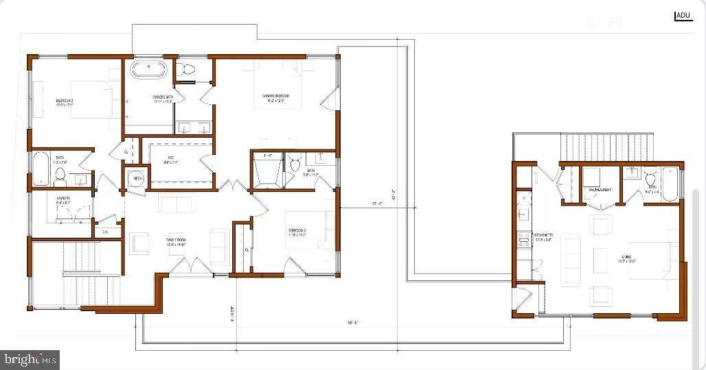
Newly Constructed. Welcome to this one-of-a-kind dwelling which blends mid-century exterior form with modern interior design. This stunning 5,600 SqFt custom build with a separate ADU/Apt Loft (400 sf) above the garage (22'x20') is situated on 1/3-acre premium corner lot. The residence spans 3 levels with 5 bright bedrooms and 5 luxurious baths (main house). It has a detached parking garage for 2-cars, plus an additional 4-car driveway. This home features an unrivaled open-concept plan perfect for modern living and entertaining. The bright living room boasts 10-ft inverted tray ceiling with LE...
Listed by Anh-thu T Vu, RE/MAX Gateway, LLC
703-798-7368 · ithuvu@gmail.com · Office 703-652-7000
MLS #VAFX2291858 · Listed February 20, 2026
Est. monthly payment
Down payment
Based on 20% down ($350,000), 6.85% interest rate, 30-year fixed. Insurance is an estimate. Actual costs may vary.
| Date | Event | Price |
|---|---|---|
| Apr 16, 2026 | Under contract | $1,750,000 |
| Feb 20, 2026 | Listed for sale | $1,750,000 |
3215 Cofer Rd, Falls Church, VA 22042
SLEEPY HOLLOW
Elementary School
GLASGOW
Middle School
JUSTICE
High School
Similar homes sold within 0.5 miles in the last 90 days.