
1731 Price St, Alexandria, VA 22301
Corcoran McEnearney
































































Est.$2,137/moCustomize payment
$115/sqft
Price per square foot
Built in 1979
47 years old
3 parking spaces
Garage
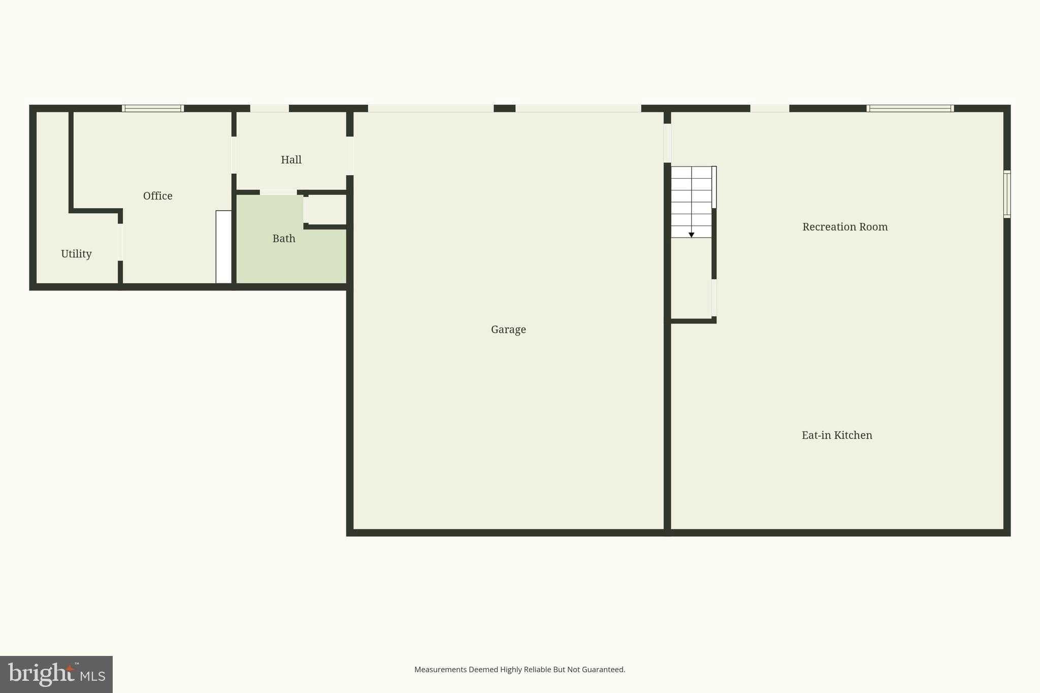
AUCTION PROPERTY. Auction date is Friday, April 24th @ 5PM. List price is opening bid price only and is not indicative of the final sale price. TERMS: 10% down day of auction, balance 60 days or before. Buyer pays both transfer taxes (2% of sale price). REAL ESTATE: Spacious country brick 1 story Rancher w/2834 SF finished area, large eat-in kitchen w/custom cherry cabinets & updated appliances, living room w/bay/picture window, family room w/cathedral ceiling & brick fireplace, 3 full size bedrooms (master bedroom bath), 3 bd; baths, large 30x24 rec/family room w/full 2nd custom kitchen, cabi...
Listed by Randal V Kline, Kingsway Realty - Ephrata
717-733-1006 · randy@kingswayrealty.com · Office 717-733-4777
MLS #PALA2084314 · Listed March 10, 2026
Est. monthly payment
Down payment
Based on 20% down ($65,000), 6.85% interest rate, 30-year fixed. Insurance is an estimate. Actual costs may vary.
| Date | Event | Price |
|---|---|---|
| Mar 10, 2026 | Listed for sale | $325,000 |
159 Edgewood Dr, New Holland, PA 17557