
103 Lacosta Blvd, Martinsburg, WV 25405
ERA Liberty Realty









Est.$2,970/moCustomize payment
$182/sqft
Price per square foot
Newer construction
Built in 2026
2 parking spaces
Garage
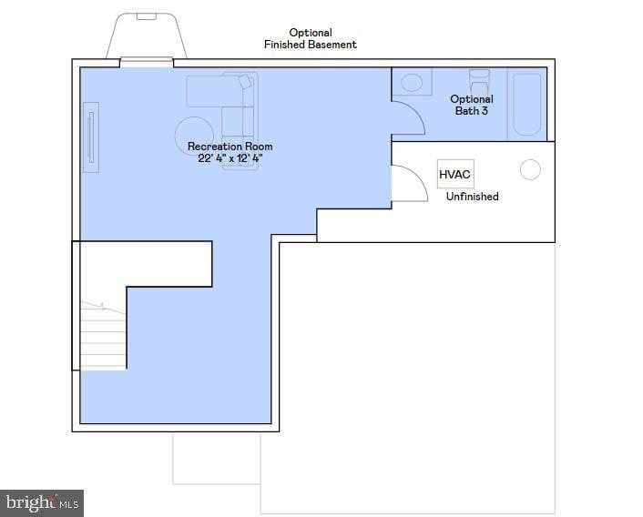
NEW CONSTRUCTION! ESTIMATED JUNE 2026 DELIVERY! PREMIUM HOMESITE!! Welcome to the Hansom! On the first floor of this new three-story home is the open-concept main living area to promote effortless transitions between spaces. It showcases a modern kitchen completed with Barnett Duraform cabinets in Stone, and frost white Quartz countertops. The center island overlooks an intimate dining room and a spacious Great Room made for airy gatherings. Upstairs are all four bedrooms in the home to provide peaceful retreats and a versatile loft ideal for work or entertainment. This home is completed with ...
Listed by Julia Foard-Lynch, Samson Properties
540-270-4274 · jflrealtor@outlook.com · Office 703-378-8810
MLS #WVBE2048422 · Listed February 18, 2026
Est. monthly payment
Down payment
Based on 20% down ($90,338), 6.85% interest rate, 30-year fixed. Tax is an estimate. Insurance is an estimate. Actual costs may vary.
Rates provided by Mable Loans.
| Date | Event | Price |
|---|---|---|
| Feb 18, 2026 | Listed for sale | $451,690 |
Lot 212 SPITZENBURG STREET HANSOM BASEMENT, MARTINSBURG, WV 25401
ORCHARD VIEW
Elementary School
MARTINSBURG SOUTH
Middle School
MARTINSBURG
High School