
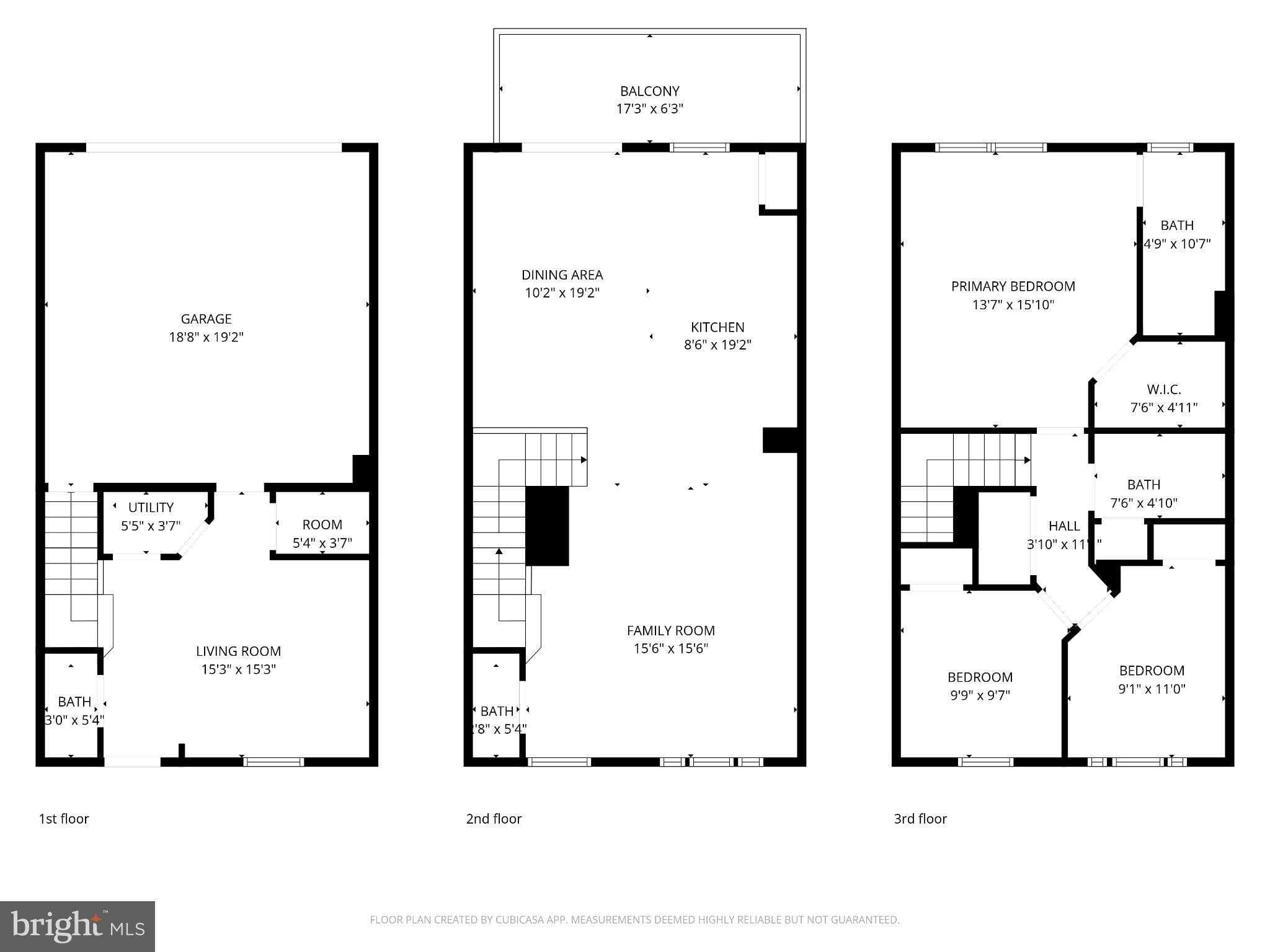
8704 Vanilla Leaf CT, Montgomery Village, MD 20886
Redfin Corp









































Est.$3,616/moCustomize payment
$313/sqft
Price per square foot
Newer construction
Built in 2024
Nestled in the charming Montgomery Village, this exquisite Craftsman-style townhouse offers a perfect blend of modern luxury and inviting warmth. Built by end of 2024, this residence boasts 1,760 square feet of meticulously designed living space, ideal for those seeking a sophisticated yet comfortable lifestyle, in a almost brand new 1-YEAR OLD townhome. The welcoming entry level features a bright, open recreation room complete with a convenient half bath. A generous storage nook/walk-in closet
Listed on March 26, 2026 · Source: MLS #MDMC2220550
Est. monthly payment
Down payment
Based on 20% down ($110,000), 6.85% interest rate, 30-year fixed. Insurance is an estimate. Actual costs may vary.
| Date | Event | Price |
|---|---|---|
| Mar 26, 2026 | Listed for sale | $550,000 |
9417 Tall Oaks CT, Montgomery Village, MD 20886