
4225 Lavender Ln, Bowie, MD 20720
Coldwell Banker Realty - Washington











































Est.$3,814/moCustomize payment
$302/sqft
Price per square foot
Newer construction
Built in 2022
2 parking spaces
Garage
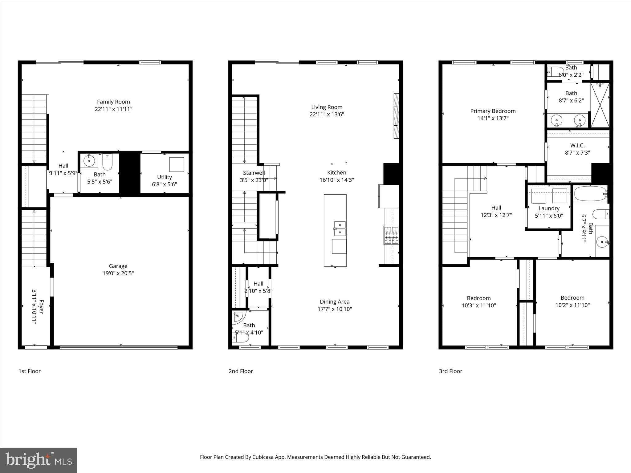
PLEASE REMOVE SHOES! This beautifully designed home features a classic brick water table fae7;ade and a two-car, front-load garage, offering both curb appeal and functionality. The lower level includes a spacious recreation room with additional storage, a finished powder room, and direct access to the backyard - ideal for entertaining or relaxing. The main level showcases an open-concept layout with a seamless flow between the kitchen, dining area, powder room, and great room. The kitchen is appointed with stainless steel gas appliances, granite countertops, and a large center island, perfect ...
Listed on January 16, 2026 · Source: MLS #MDPG2188140
Est. monthly payment
Down payment
Based on 20% down ($116,000), 6.85% interest rate, 30-year fixed. Insurance is an estimate. Actual costs may vary.
| Date | Event | Price |
|---|---|---|
| Jan 16, 2026 | Listed for sale | $580,000 |
16416 Fife Way, Bowie, MD 20716